top of page

PROGRAMMES IMMOBILIER
L'AGENCE BASTIA BALAGNE
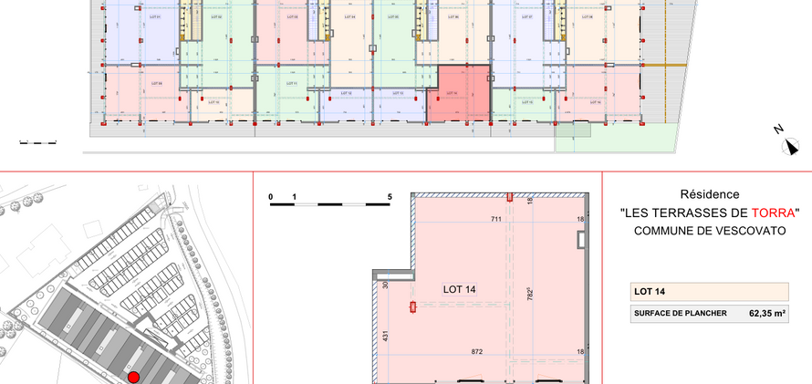
RESIDENCE LES TERRASSES DE TORRA
Vescovato
Située au centre de Vescovato, la résidence Les Terrasses de Torra est composée de commerces en rez-de-chaussée ainsi que des appartements au premier étage allant du T2 au T4 avec terrasse et place de parking privative. Les logements seront aménagés et climatisés.
COMMERCES
APPARTEMENTS
bottom of page






























